Terrenos en venta

Móstoles, Centro - Hospital
1.000.000 €
3 dormitorios 3 dormitorios
844 m2 844 m2

Terrenos en venta

Móstoles, Centro - Hospital

Descripción anuncio

Agencia inmobiliaria de MÓSTOLES zona AVENIDA DOS DE MAYO - PLAZA DEL PRADILLO - AVENIDA DE LA CONSTITUCION -PARQUE ZARAUZ -PARQUE FATIMA -CORONA VERDE - MOSTOLES CENTRAL.

-Oficina Tecnocasa:

EN VENTA:

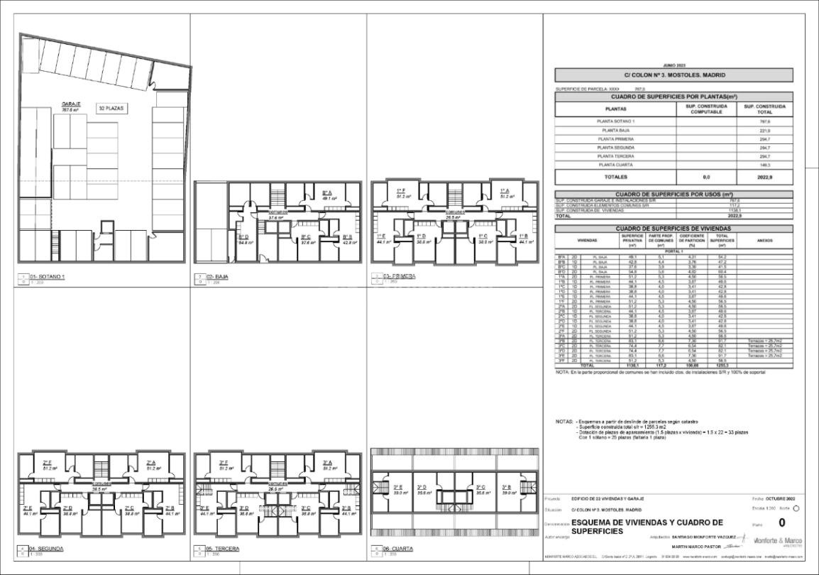
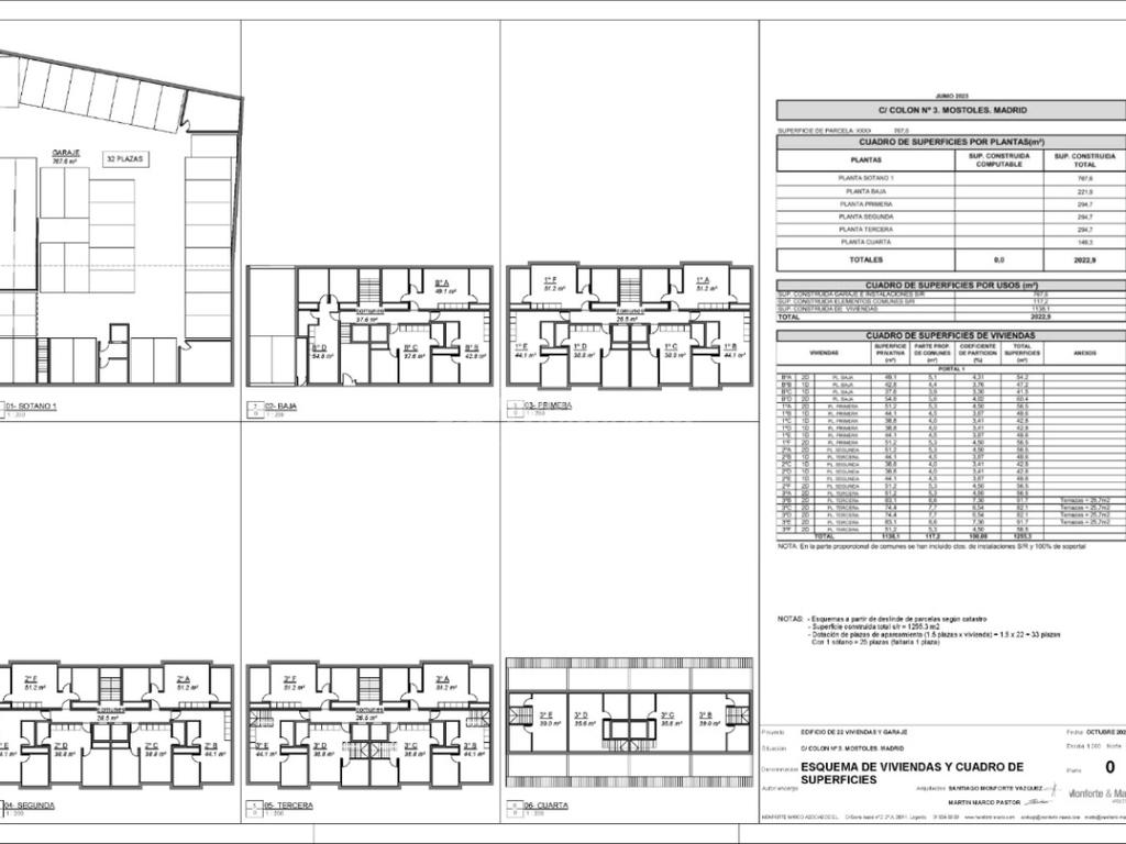
SOLAR EDIFICABLE en CALLE COLON con 844 metros cuadrados y 1.255 metros edificables. Cuenta con ante proyecto realizado por Monforte Marco Asociados que incluimos en el anuncio. Zona con todos los servicios cercanos, Metro, Renfe, así como líneas de autobús urbanas e interurbanas prácticamente en la misma puerta, además de colegios, centro de salud, hospital, comercios y supermercados.

-Altura edificable: 4 plantas (B+3) + bajo cubierta
-Fondo edificable: 12m
-Edificabilidad sobre rasante: 1.255m2 aproximadamente

Estimamos que la distribución del edificio que se podría promover en la parcela sería la siguiente:

-Altura edificable: 4 plantas (B+3) + bajo cubierta
-Fondo edificable: 12m
-Edificabilidad sobre rasante: 1.255 m2 aproximadamente

Estimamos que la distribución del edificio que se podría promover en la parcela sería la siguiente:

Planta semisótano: garaje con capacidad para 25 plazas como máximo (opcional dos niveles de sótano con monta coches y máximo 50 plazas).
Planta baja con portal, rampa y 4 viviendas de entre 40m2 y 50m2 (incluyendo p. p. de comunes) de 1 dormitorio y 2 dormitorios. El resto de patio de parcela no ocupado por el patio privado sería de uso común.
Planta primera con 6 viviendas de entre 40m2 y 50m2 (incluyendo p. p. de comunes) de 1 dormitorio y 2 dormitorios.
Planta segunda con 6 viviendas de entre 40m2 y 50m2 (incluyendo p. p. de comunes) de 1 dormitorio y 2 dormitorios.
Planta tercera + bajo cubierta: 4 viviendas dúplex de 80m2 (incluyendo p. p. de comunes) de 2 dormitorios con terrazas solárium delantera y trasera, y 2 viviendas de 50m2 (incluyendo p. p. de comunes) de 2 dormitorios.

Posibilidad de hacer zonas comunes en los bajos del edificio como, parque infantil, piscina, pista de pádel o cualquier otro tipo de servicio para los futuros propietarios.

Ver más

Características

Ref.:
532421
Libre:
Tipo de inmueble:
De época
Año de construcción:
1983
Ver más
Precio Precio
1.000.000 €
Cuota mensual Cuota mensual
€ 3.168 / mes

Clase energética

Este inmueble está exento de clase energética
Año de construcción:
1983

Servicios cercanos

Transporte público Transporte público
Pradillo
Pradillo
200 m
Móstoles Central
Móstoles Central
620 m
Estación de Móstoles
Estación de Móstoles
560 m
Metro Universidad Rey Juan Carlos
Metro Universidad Rey Juan Carlos
1,4 Km
Transporte público
350 m
Colegios Colegios
Colegio de Educación Infantil y Primaria Beato Simón de Rojas
330 m
La Inmaculada
440 m
Nueva Bambi
470 m
Nene"S
550 m
Liceo San Luis
550 m
Farmacias Farmacias
Lda. Pilar Ruibal Robledo
160 m
Farmacia América
220 m
Farmacia Independencia 21
240 m
Lda. Teresa Gómez Alonso
280 m
Farmacia Tingo María
300 m
Hospitales Hospitales
Centro de Salud Dos de Mayo
750 m
Centro de Especialidades Coronel de Palma
760 m
Hospital Universitario HM Puerta del Sur
1,1 Km
Hospital Universitario de Móstoles.
1,3 Km
Hospital Rey Juan Carlos I
1,8 Km
Supermercados Supermercados
Ahorramás
240 m
Mercado de Abastos
310 m
Dia
430 m
Condis
590 m
Carrefour Market
620 m
Tiendas Tiendas
Alimentación
200 m
Pannus
200 m
El Obrador de Goya
210 m
Mary Novias
250 m
Rosaranda Novias
260 m
Bar Bar
La Tasquita
140 m
Jandro
240 m
Bar Marivi
360 m
3 Hermanos
420 m
Yaidun El Segoviano
800 m
restaurantes restaurantes
Los Picos
110 m
Gregorio
320 m
Restaurantes
340 m
New Caura
370 m
Pintxos
370 m
Ver más

Calcula tu hipoteca

Simple y sin compromiso
Entrada
%
al mes
Hipoteca
%
El resultado de esta simulación es orientativo. Los datos indicados no corresponden a condiciones reales de productos y no implican compromiso, obligación o vínculo jurídico-legal para el Grupo Tecnocasa.

Solicita un asesoramiento

Introduce tus datos
GRACIAS POR CONTACTAR CON NOSOTROS.
Esta oficina de Kìron se pondrá en contacto contigo lo antes posible para ofrecerte un asesoramiento financiero más completo y acorde a la información que nos has facilitado.
Franquiciado
Estudio Pradillo-Constitucion Sl
Travesía Ricardo Medem, 3 Local 1 28931 Móstoles (M)
Travesía Ricardo Medem, 3 Local 1 28931 Móstoles (M) Zona: PRADILLO - CONSTITUCIÓN - MOSTOLES CENTRAL
Lunes a Viernes : 10:00 a 14.00 - 17:00 a 21:00 Sábados: 10:00 a 14:00

Nuestro equipo


  • Gabriel Peralta
    Colaborador

  • Miguel Martin
    Franquiciado

  • Oscar Ledesma
    Colaborador

  • Juan Roo
    Colaborador
Franquiciado
Estudio Pradillo-Constitucion Sl
Travesía Ricardo Medem, 3 Local 1 28931 Móstoles (M)

Franquiciado
Estudio Pradillo-Constitucion Sl
Franquiciado
Estudio Pradillo-Constitucion Sl

2025 Ibero Group Tecnocasa Services, S.L.U. - CIF B-65870776 - C/ Pallars, nº 1-3 Parque de Negocios Mas Blau II, 08820, El Prat de Llobregat (Barcelona-España). Red en franquicia - Cada sociedad franquiciada tiene su propio titular y es independiente del franquiciador.

Política de privacidad | Aviso legal | Pólitica de las Cookies | Información al consumidor | | Canal ético